Ersatzbau für die Deutschlandhalle und Erweiterung Berliner Messe II

Aufgabenstellung
Ersatzbau für die Deutschlandhalle, 25.000 qm Ausstellungsfläche, Kongresszentrum und Gastronomie
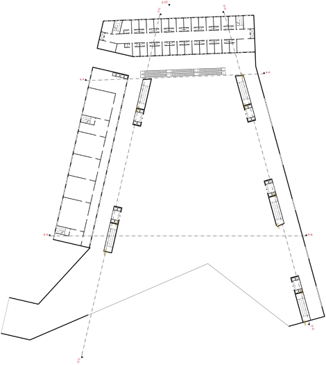
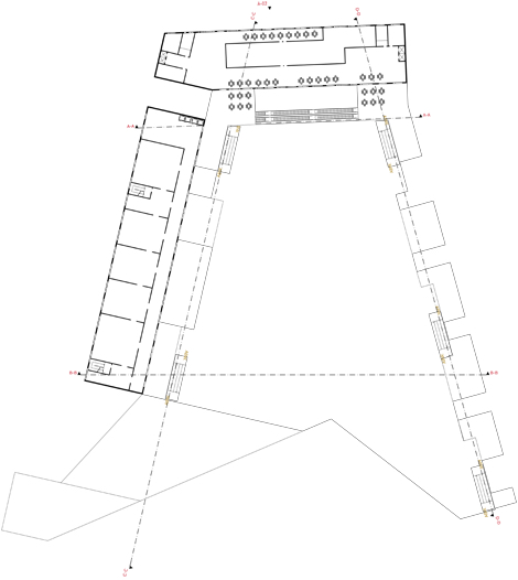
Konzept
Der Entwurf besteht in einer über der Autobahn und der Bahntrasse schwebenden Messehalle auf zwei Ebenen mit etwa 20.000 qm Ausstellungsfläche, gefasst von zwei sechsgeschossigen Flügeln, die ein Kongresszentrum und ein Hotel beherbergen. Gewerbliche Nutzungen im Erdgeschossniveau bereichern die überdachten Erschließungswege. Die Städtebauliche Lücke der Neuen Kantstraße wird geschlossen, während der Vorplatz des ICCs zu einem geschlossenen Stadtplatz entwickeltet wird. Das Dachgeschoss wird als Dachterrasse für Veranstaltungen und Gastronomie nutzbar. Der S-Bahnhof Messe Nord wird in das Gebäude integriert.









Gemeinsam mit Irina Suchkousova und Anastasya Arkhipova im Rahmen der Deutsch-Russischen Summer School 2011 des Architekten- und Ingenieurvereins zu Berlin. Betreut durch Dipl.-Ing. Jens Metz und Dipl.-Ing. Ralf Wilkening.