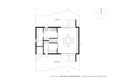
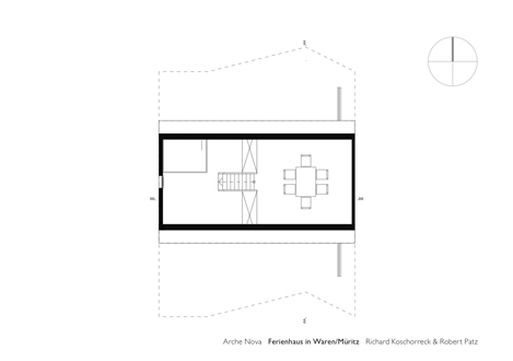
Ferienhaus an der Müritz

Aufgabenstellung
Ferienhaus für eine dreiköpfige Familie. Leichtbau auf der Grundfläche eines Bestandsbaus
Ort
Seegrundstück an der Müritz
Konzept
Ein großzügiger Wohnraum bildet den Mittelpunkt zugleich für Grundstück und Haus. Eine leichte Holzkonstruktion bietet effizienten sommerlichen Wärmeschutz und verbirgt geschickt die Dachentwässerung. Bereits vorhandene Materialien werden in großen Teilen wiederverwertet und zugleich wird der natürliche Alterungsprozess neu eingebrachter Baustoffe zum zentralen Thema.






