HavelLink Potsdam

Aufgabenstellung
Wohnkonzepte im historischen Kontext
Ort
Wettbewerbsgebiet am Potsdamer Havelufer
Konzept
Die städtebaulichen Interventionen verteilen sich auf das gesamte Wettbewerbsgebiet und sind durch die Analyse einer Reihe von Defiziten und Potenzialen begründet:
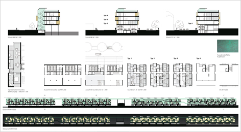
1. Am Havelufer im Norden-Osten, vom Babelsberger Park kommend, lässt sich eine deutliche Trennung des Wohngebiets von der Uferzone feststellen. Von Nachteil ist daneben die Begrenzung des Areals durch die Nuthestraße. Das Gebiet, das zum größten Teil städtebaulich und architektonisch durch die siebziger Jahre des sozialen Wohnungsbaus gekennzeichnet ist, zeichnet sich durch eine besonders hohe Wohndichte bei einem grosszügigen Angebot an öffentlichen Freiflächen minderer Qualität aus. Die Lage am Ufer der Havel ist überhaupt nicht spürbar im Gebiet. Eine Verzahnung mit Ufernutzungen besteht nicht. Unsere Intervention besteht deshalb vor allem in der Aufhebung dieser Trennung und in Setzung neuer Wohntypologien, insbesondere familiengerechtem Wohnen am Wasser. Zum Teil im Wasser stehende Gebäude mit jeweils fünf Wohneinheiten (siehe Plangrafik) reihen sich entlang von Stegen, die die alten Anleger der Bootsvereine ersetzen. Als Motiv für eine solche gemischt lockerere Bebauung mit kleineren Einheiten kann die sogenannte Nutheschlange von Hinrich Baller herangezogen werden.
2. Als wichtiger Ankerpunkt wird an der Havel ein Ersatzbau für die öffentliche Schwimmhalle am Brauhausberg ein neues Stadtteilzentrum bilden. Ein Sport- und Freizeitbad in einer Einheit soll verschiedene Bevölkerungsgruppen aus allen umliegenden Wohngebieten, insbesondere Familien, Senioren sowie den Kindern und Jugendlichen der angrenzenden Schul- und Betreuungseinrichtungen als zentraler Anlaufpunkt vergleichbar einem „club nouveau“ dienen. Die Verbindung nach Norden wird über die Nuthe und die Freundschaftsinsel hergestellt.
3. Das Areal des ehemaligen Güterbahnhofs nördlich des Potsdamer Hauptbahnhofs stellt eine mehr oder weniger ungenutzte Freifläche dar. Die neue Wohnbebauung aus Osten wird in unserem Konzept fortgeführt. Dabei ist die Bahnhofsachse mit einer Verbindung über die Freundschaftsinsel als vervollständigte Nord-Süd-Querung zentrales Element. Die Bebauung wird dabei angrenzend an das Bahnhofsgebäude als Blockstruktur zur Havel geöffnet und Nuthe ausgeführt. In Richtung der Havel wird die Bebauung in eine lockere Struktur aufgelöst. Die Setzungen des Wohnen am Nuthepark (derzeit im Bau) und der Wohnblöcke von Glass Kramer Löbbert (Wettbewerb entschieden) nördlich sowie das City-Quartier südlich der Bahnstrecke dienen als Referenz. Unsere Planung versteht sich in diesem Bereich als logische Ergänzung.
4. Angrenzend an den Schlossneubau möchten wir die urbane Dichte analog des historischen Vorbilds wiederherstellen. Ein Block, geöffnet zur Havel, schließt dabei den Alten Markt, ein Riegel nördlich des Schlosses schmälert die Friedrich-Ebert-Straße. Die als „städtebauliche Grosszügigkeit“ in den sechziger Jahren geplante Umgebung der Nikolaikirche zerfällt trotz des Schlossneubaus zu sehr, daher die Setzungen.
5. Die Uferpromenade und die Anleger am Hafenbecken vor der südlichen Schlossfassade dienen als grosszügiger Vorplatz und als Achse nach Süden. Unsanft unterbrochen wird diese Achse durch den Bahndamm und die Bahnbrücke. Die danach folgenden Anleger sind erst nach Überwindung einer wenig einladenden Unterquerung zu erreichen. Die Brücke an sich stellt eine recht unangenehme Sichtbarriere für das neuentstehende Quartier der Speicherstadt auf der gegenüberliegenden Havelseite in Richtung Schloss und Nikolaikirche dar. Unsere Idee ist die Setzung einer neuen Bahnbrücke mit größerer Länge und filigranerer Konstruktion, die die Uferpromenade deutlich erweitert und an sich eine objekthafte Qualität generiert. Eine an dieser Stelle fehlende Fussgaängerbrücke wird in die Brückenkonstruktion integriert. Ein Aussichtsplattform über Brücke und in der Schloss- und Bahnachse stellt dabei einen besonderen Höhepunkt dar, der über Rampen nach Osten und Westen erreicht wird.
6. Als umfangreichste Intervention lässt sich der westlich des Lustgartens neu gesetzte Baukörper charakterisieren (siehe Plangrafik). An dieser gefühlten Stadtkante befindet sich bisher die unschöne Rückseite des brandenburgischen Innenministeriums. Der 2001 nach historischen Formen wiederhergestellte Lustgarten endet unsanft. Unser Entwurf sieht vier gereihte Baukörper vor, die durch eine gemeinsame Dachebene verbunden werden. Die gesamte Struktur kreuzt die Bahntrasse und verläuft bis auf das Ufer der Havel. Ein öffentlicher Weg durchschneidet die Gebäude und führt auf die Dachebene bis über die Havel. Die zwei nördlichen Blöcke enthalten auf drei Geschossen Wohneinheiten zwischen 45 und 125 Quadratmetern. Im Erdgeschoss befinden sich Gewerbeeinheiten, die sich in freier Konfiguration verbinden lassen. Vor allem eine Ansiedlung von Gastronomie würde das Potenzial des Lustgartens und die Umgebung des historischen Ensembles erweitern. Die Blöcke südlich der Bahntrasse sind der reinen Wohnnutzung vorbehalten mit analogen Größeneinheiten, die sich in zwei Richtungen durch ein weites Havelpanorama auszeichnen. In ihrem Untergeschoss befinden sich Bootsanleger. Die bestehende KGA Hinzenberg ersetzen wir durch eine Neuanlage aus eher lebhaften Spiel- und Sporteinrichtungen, ergänzend zu den Einrichtungen des Lustgartens und der Freundschaftsinsel. Die Anordnung erfolgt in teilbegrünten Geländewellen die durch Verbindungswege durchzogen sind. Die Fläche entlang der verlängerten Henning-von-Treschkow-Straße bis zum Hotel Mercure wird durch eine leichte, dauerhafte Dachkonstruktion überspannt. Auf dieser Fläche finden eine Reihe von Veranstaltungen statt, für die häufig fliegende Bauten errichtet werden. Das Dach ersetzt diese und schafft eine durchlässige Trennung zwischen Breiter Straße und Lustgarten.










zum Wettbewerb
Beitrag im Schinkel-Wettbewerb 2012 gemeinsam mit M.Sc. Kevin Krüske.