Leben im schwarzen Block

Aufgabenstellung
Wie Weiterbauen?
Vorgaben
Bauruine eines Seniorenheims
Ort
Berlin, Köpenicker Straße 138 (neben dem Köpi 137)
Konzept
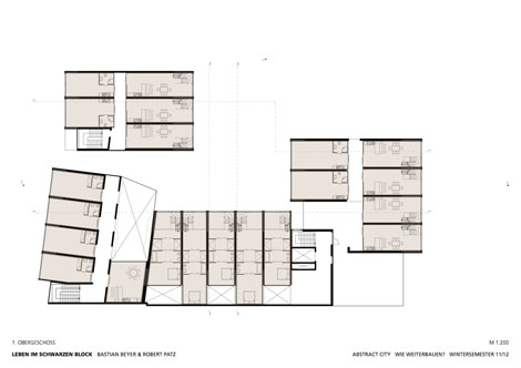
Die grundsätzliche Überlegungen zu der Bauruine in der Köpenicker Straße ist, wenn schon weiterbauen, dann heißt es doch, so viel wie möglich des bereits errichteten Bestands zu erhalten. Daneben glaube wir, an diesem Standort eine Wohnbebauung mit integriertem Boarding-House und einer Mischnutzung im Erdgeschoss realisieren zu können. Hierfür haben wir ein Konzept entwickelt, das vor allem die natürliche Belichtung bis tief in das Gebäudeinnere ermöglicht um qualitätvolles Wohnen zu entwickeln.
Nach Entfernung der Fassade auf allen Geschossen, werden an der westlichen Brandwand von jeder zweiten Schotte Decken abgenommen, so dass tiefe Lichtschächte entstehen. Beim Nördlichen Bauteil wird eine Gasse zwischen die gegeneinander verschobenen Teile geschlagen. Daneben wird der nach Süden orientierte Teil dieses Flügels teilweise entfernt. Im südlichen Baukörper wird das Obergeschoss abgenommen, sowie eine Gasse geschlagen, unmittelbar angrenzend an den deutlich höheren Baukörper im Zentrum.
Der Ausbau erfolgt daraufhin vollständig in einer Leichtbauweise mit Materialien wir Holz und Holzwerkstoffen, insbesondere OSB-Flachpressplatten. Es entstehen Maisonette-Wohnungen, bei denen die innerer Erschließung vor die Fassade verlagert ist hinter eine doppelgeschossige Öffnung. Dieser Typus wird Rückseitig über Lichtschächte belichtet. Daneben entstehen eingeschossige Einheiten, vor allem im straßenseitigen Baukörper, für deren Bewohner Gemeinschaftsküchen zur Verfügung stehen. Die Wohnungen sind überwiegend als Enfilade organisiert. Die Trennung zwischen Wohn-/Arbeits- und Schlafräumen erfolgt durch die Bäder und Aufbewahrungsräume.
Als Gemeinschaftsflächen stehen die Wintergärten auf den Dächern zur Verfügung. Sie lassen sich in den Sommermonaten großzügig öffnen und integrieren zugleich die Erschließungswege der oberen Einheiten. Die Erschließung der darunter liegenden Einheiten beinhalten zusätzliche Flächen zur Kommunikation und zum Spielen. Die dabei in jedem Typus unmittelbar angrenzenden Küchen lassen sich jeweils weit öffnen und werden somit zur halbprivaten Zone des Austauschs zwischen den Bewohnern.
Die Erdgeschossnutzungen sind im Süden ein Kindergarten mit eigener Außenanlage, Werkstätten und Ateliers mit direktem Bezug auf den Hof, eine Kletteranlage, die den Luftraum im nördlichen Baukörper bespielt und ihre Lobby zur Straße ausrichtet, sowie eine Gastronomieeinheit im Nord-Osten, für die ebenfalls ein Teil des Hofes zur Nutzung als Außenanlage zur Verfügung steht. Darüber hinaus ist steht die Dachterrasse im Nordwesten (4. OG) als Sommerbar und Veranstaltungslounge zur Verfügung.
Transparente Elemente sind aus Glas. Die hinterlüftete Fassade und die Dachflächen werden mit Bitumen-Bahnen abgedichtet, bzw. gegen Schlagregen geschützt. Im Erdgeschoss sorgt eine Elementfassade für flexible Öffnungsmöglichkeiten.
















Link zu den Nachbarn: Köpi 137
Gemeinsam mit Bastian Beyer. Entwurf betreut durch Prof. Bettina Götz, UdK Berlin.