LAUBE 55

Ort
Historischen Laubenkolonie am Berliner Wannsee mit über 60 kleinen Einheiten und eigenem Strandabschnitt
Konzept
Als zeitgemäße Version einer traditionellen Idee, fügt sich dieser Entwurf in eine enge Ansiedlung von bestehenden Strandlauben am Berliner Wannsee. Der geringe Abstand zu den Nachbarhäusern erfordert die Einhaltung gewisser Gestaltungsregeln. So sind Grundfläche und Höhe vorgegeben. Daneben auch die Anordnung von Fenstern, die den Durchblick in Richtung des Sees gewähren sollen.
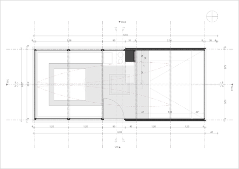
Aufgrund der Knappheit der zur Verfügung stehenden Fläche ist daher diese besonders schlanke Konstruktion entwickelt worden. Die mit Multiplex-Holzbauplatten ausgefachten Stahlrahmen verleihen Stabilität bei minimaler Dicke und natürlicher Oberfläche. Als Außenhaut dient diffusionsdichte und -offene Folie, die von einer Lattung aus unbehandeltem Lärchenholz verdeckt und verschattet wird. Einbauten wie Sitz- und Liegemöbel, sowie eine Kombüse, die alle Funktionen beherbergt, sind passgenau eingefügt.
Hinter dem Küchenmöbel verbirgt sich die verschiebbare Leiter zur Empore, welche wiederum nicht nur zusätzliche Liegefläche bietet, sondern auch als Ausguck dienen kann, denn die geöffneten Dachluken machen die Laube zum Cabrio. So lässt sich unter freiem Himmel in Hängematten entspannen, während der durch blickdichte Rollos geschützte Raum mithilfe des eingebauten Beamers zum Mini-Kino wird.






[Vergrößerte Darstellung]


Herstellung & Montage:
Mit Unterstützung bei der Planung durch
Dr.-Ing. Christian Müller, Ingenieurbüro für Tragwerksplanung, Berlin
Herstellung durch
Schlossermeister Bernd Euler, Berlin und
Tischlermeister Pelle Hinrichsen, Berlin
Aufbau durch
Bastian Beyer, Jörg Brinkmann, Mirko Maierzak und Matthias Ruhl, Constance Scharff & Arturo Zychlinsky