Plusenergie-Holzbau-Reihenhaus
31.07.11 Studium

Aufgabenstellung
Plusenergie-Reihenhaus
Ort
Fliegersiedlung Berlin-Tempelhof
Konzept
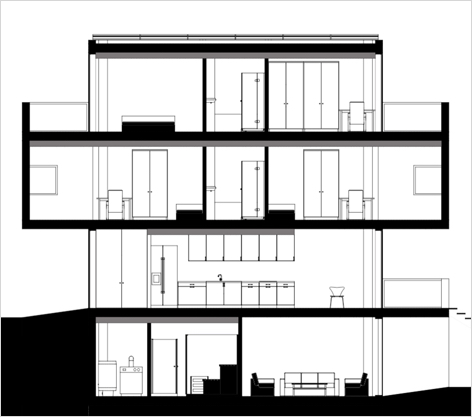
Zwischen Brandwänden, vorgeschlagen als Sichtbetonscheiben, spannen leichte Holzbalkendecken, die durch die Bereiche der Treppenlöcher unterbrochen sind und daher vom Dach abgehängt werden. Durch den Versprung im Höhenniveau auf dem Baufeld kann der Wohnraum im Untergeschoss untergebracht werden, während im Erdgeschoss die großzügige Wohnküche den stützenfreien Eingangsbereich und das Zentrum des Hauses bildet. Die Etage der Kinderzimmern lässt sich durch Schiebeelemente zu einem gemeinsamen Spielgeschoss verbinden.






Gemeinsam mit Bastian Beyer im Rahmen des Seminars Baukonstruktion II, betreut durch Prof. Dr. Christoph Gengnagel, UdK Berlin.