Tricksters Plan - Kunst-am-Bau-Wettbewerb Freie Universität Berlin
01.06.2016 - realisiertes Projekt | Wettbewerbsbeitrag

Die besondere Qualität des Neubaus – der eine symbolische Lesart zulässt – offenbart sich in der Übersetzung der Struktur wissenschaftlichen Arbeitens in die architektonische Form. Die räumlichen Verbindungen, Vernetzungen und Durchlässigkeiten bilden ein zeitgemäßes wissenschaftstheoretisches Selbstverständnis ab. Übergreifende Verfahren aller Fächer sind Übersetzung und Interpretation unterschiedlich materialisierter Wissensbestände, welche auch durch die interdisziplinäre Campus-Bibliothek repräsentiert werden. Als räumlicher Zusammenschluss einer Vielzahl verschiedener Disziplinen unter einem gemeinsamen Dach ist das Gebäude dazu angelegt, durch Zusammenarbeit Wissenskulturen ineinander zu verschränken und überführbar zu machen. Die prinzipielle Darstellungsgebundenheit von Wissen wird in den Prozessen deutlich. Das vorgeschlagene künstlerische Konzept nimmt sich deswegen der Darstellungen, Transkriptions- und Translationsverfahren an, wobei es natur- und geisteswissenschaftliche Bildpraktiken und Zeichensysteme in einer künstlerisch-spekulativen Arbeit verwebt. Sie soll Raum schaffen für Assoziationen, Projektionsflächen des eigenen, situierten Wissens bieten und jene Überraschungen und Ironien freilegen, die im Herzen jeglicher Produktion von Wissen liegen.
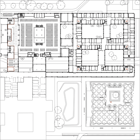
»Tricksters Plan« ist eine thematische Assemblage, die als verdichtete, phantastische und mehrdeutige Narration dem Ort auf verschiedene Weise eingeschrieben wird. Die dreiteilige Arbeit verbindet Bibliothek (A), Institutsgebäude (B) und Vorplatz (C), und knüpft inhaltlich und formal an bestehende künstlerische Interventionen auf dem Campus an. Wesentlicher Teil des vorgeschlagenen Konzepts ist ein der finalen Ausarbeitung der drei Teile vorausgehender, offener Entwicklungsprozess am Ort. Die in der Entwurfsphase bereits begonnene, fortzusetzende Auseinandersetzung (Kollaboration) mit den NutzerInnen ermöglicht die Verarbeitung jener Themen, Eindrücke, Anekdoten und Bilder, die mit dem Gebäude und den jeweiligen Disziplinen in Beziehung stehen. Die Wissenschaftstheorie, die historische Erzählung, das Selbstbild und die Situierung der Disziplinen werden inhärente Teile des Werks. Ziel ist neben einer Reflexion, persönliche Verbundenheit zum Ort zu stiften, ihn »auratisch« aufzuladen. Der räumliche Aneignungsprozess, wie er sich in allen Fachbereichen der Freien Universität selbstverständlich vollzieht, und der mittels individueller Eingriffe und Gestaltungen oft erst Aura evoziert, soll aufgegriffen, moderiert und im Werk manifestiert werden.
Aus den bereits geführten Gesprächen mit NutzerInnen des Gebäudes und der übergreifenden Recherche ergaben sich potentielle Themenschwerpunkte, wie die oben angesprochene Vernetzung und Übersetzungsprozesse von Wissenskulturen. Ein weiterer, wesentlicher Punkt ist die »prinzipielle Ungesichertheit« von Wissen. Die Vermittlung dieser Ungesichertheit ist eine Aufgabe universitärer Lehre und bildet den Kern der vorgesehenen künstlerischen Erzählung. Insbesondere im universitären Kontext wird durch die Verbindung von Forschung und Lehre die Temporalität von Wissen aufgrund der fortwährenden Neugewinnung und -bewertung von Erkenntnissen deutlich. Die gewählte Metapher für die Unsicherheiten des Erkenntnisprozesses ist der Arbeit der Biologin und Wissenschaftstheoretikerin Donna Haraway entliehen. Der »Trickster« dient Haraway als evokative Figur, welche die Welt – den Gegenstand der Wissenschaft – als »gewitzte Agentin« zu visualisieren versucht. Der Trickster, der in südostamerikanischen Kulturen die Figur des Kojoten annimmt, essentialisiert als zwanghafter Grenzübertreter Veränderung, conditio sine qua non für den Forschungsprozess. Nur er vermag als Gestaltwandler, Umkehrer, Bote oder Bricoleur Gegensätze zu vereinigen und steht so, als eine der ältesten Ausdrucksformen der Menschheit, am Anfang von Zivilisationsprozessen. Als Agentin verstanden, vermag die Welt Grenzziehungen auszuweichen. Die prinzipielle Ungesichertheit von Wissen wird begründet. Tricksters Plan ist, die ausweichende Geste in ihrem stets welterweiternden Charakter produktiv zu machen.

A. Bibliotheksfoyer
Im Foyer der Campus-Bibliothek ist eine großformatige Wandarbeit Mittel des künstlerischen Besatzes. Auf zirka 350 Quadratmetern gestalteter Wandfläche zeigt sich ein dichtes und wildes Gewebe grafisch-narrativer Elemente. Es steht im Gegensatz zu den durch die Fenster zur Bibliothek sichtbaren, strengen Reihungen der Bücherregale voll systematisch geordneten, archivierten Wissens. Die Gestaltung folgt den Verläufen der Wand wie selbstverständlich, vollzieht Vor- und Rücksprünge, ignoriert Öffnungen und Möblierungen, scheint den Wänden schon immer eingeschrieben gewesen zu sein, ganz wie die Inschriften der Wände antiker Stätten. Die scheinbare Anti-Struktur trifft auf Struktur ohne mit ihr zu kollidieren. Sie erweitert sie. Die Wandarbeit bietet durch ihre zeichnerische Opulenz mit jedem Aufenthalt im Gebäude neue Entdeckungen. Elemente werden plötzlich sichtbar, etwa wenn aus dem Regal hinter dem Tresen der Bibliotheksverwaltung Bände entnommen werden, wenn hinter Büchern Bilder auftauchen.

[Vergrößerte Darstellung]
B. Institutsgebäude, Treppen I–VI
Im Institutsgebäude sind die sechs Treppen als Kreuzungs- und Angelpunkte der Erschließung Orte einer sechsteiligen Installation. Jede der Einzelinstallationen ist durch eine eigene Farbe gekennzeichnet und bieten dadurch Orientierung im Gebäude. Abhängig von den unterschiedlichen Höhen der Lufträume in den Treppenaugen umfassen die Installationen zwei bis sechs aus Aluminium geformte Segmente, die als Abstraktion »eingerollter Blätter« gelesen werden können. Die »Blätter« sind unterschiedlich gebogen. Ihre Formvariation beruht auf einer euklidischen geometrischen Konstruktionsweise. Semiotisches und kalkulatorisches Bewusstsein werden durch die Geometrie integriert. Die Segmente sind jeweils einseitig farbig lasiert. Die Lasierungen der Segmente offenbaren durch Auslassungen grafische Notationen – ähnlich denen des Bibliotheksfoyers – auf ihrer metallischen Oberfläche. Einige der Blätter sind innen lasiert und verbergen ihren Inhalt, andere legen ihn auf der äußeren Seite offen. Als vertikale Struktur durchkreuzen die Segmentfolgen die horizontal geprägte Anlage des Gebäudes und machen Höhen deutlich, gleich einem Echolot. Der Affordanzcharakter der Arbeit zeigt sich im Versuch, den Bildwelten einer der Installationen zu folgen. Der Betrachter ist gezwungen, sich konzentrisch um sie zu bewegen, die Treppe nach oben oder unten zu nehmen. Ein Perspektivwechsel wird erforderlich, jene Bewegung, die oft auch Bedingung von Erkenntnis ist. Zugleich wird Licht gestreut die jeweilige Farbe verbreitet sich im Raum und »Dinge werden in einem neuen Licht gesehen«. Mit der Bewegung spiegelt sich der Betrachter und seine Bewegung schemenhaft in den Oberflächen. Durch die Reflexion gibt es eine Überlagerung von Subjekt und Zeichen.

[Vergrößerte Darstellung]

C. Vorplatz
Den Mittelpunkt des Vorplatzes bildet eine Skulptur. Es ist der Kojote, der immer wieder in den Erzählungen des Foyers und der Treppenaugen aufgetaucht ist. Sein Ausdruck ist verwegen, neugierig, heiter. Er ist grob geschnitten und nur Details wie das Gesicht sind feiner geschnitzt. Mit einer Schulterhöhe von zirka 80 cm lädt er zur Berührung ein. Als ein Wesen, das eine Vielzahl von Assoziationen evoziert, von mesoamerikanischen Kulturen über Hesse bis Beuys, als Symbol für die Freiheit und als anpassungsfähiger Kultur(sic!)folger erlaubt er Identifikation, Reibungsfläche und Anregung für interdisziplinären Austausch. Da er zudem den Bezug zu Nordamerika herstellt, also auch auf die historische Narration der Freien Universität Bezug nimmt, hat er das Potenzial eine Art Maskottchen der Universität zu werden. Durch seine Platzierung in der Haupt-Bewegungsrichtung zwischen den Gebäuden »Rost-/Silber-/Holzlaube« und dem U-Bahnhof passieren ihn täglich Studierende und Lehrende der Universität. Bewusst steht er in der Nähe des Walnussbaums. Eine Eigenart dieser Baumart ist, dass, wenn sie ausgewachsen sind, unter ihnen kaum mehr Gras wächst, eine kleine Steppe entsteht. Der Kojote scheint also seinem natürlichen Lebensraum entsprungen zu sein. Die Skulptur selbst ist aus Alaska-Zeder, dem Fassadenmaterial der »Holzlaube« gefertigt. Das Material ist witterungsbeständig behandelt, darf aber – ähnlich wir die Möblierung der Bänke und die Fassade – altern. Beschädigungen beziehungsweise Bemalungen waschen sich aus der Holzoberfläche nach kurzer Zeit aus. Der endgültige Entwurf der Holzskulptur erfolgt, genau wie die grafischen Assemblagen für Bibliotheksfoyer und Treppen, in der vorgesehenen, vertiefenden Entwurfsphase.


Beitrag im Kunst-am-Bau-Wettbewerb Zusammenführung der »Kleinen Fächer« im dritten Bauabschnitt und Neubau Campusbibliothek der Freien Universität Berlin. 1. Preis und Realisierungsempfehlung. Umsetzung bis Oktober 2017.
Besonderer Dank gilt Constance Scharff (FU Berlin) für die wissenschaftliche Begleitung der Konzeptionsphase. Dank auch an jene MitarbeiterInnen des Fachbereichs Geschichts- und Kulturwissenschaften der FU Berlin, die in der Bearbeitungsphase kurzfristig einen inhaltlichen Austausch ermöglicht haben. Ein Quell der Inspiration war und ist die wissenschafts- und kunsttheoretische Lehre Kathrin Buschs (UdK Berlin, Graduiertenkolleg »Das Wissen der Künste«).